
The church of St. Catherine belonged to
the famous Orthodox Venetian monastery, dependency of Sinai. It was originally
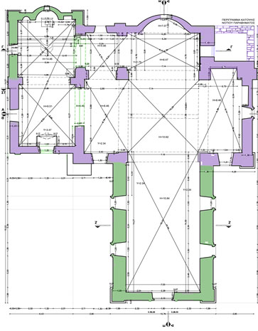
build in the 13th or 14th c. on a cruciform plan, with an annexed pareclession.
It consists of a long vaulted nave and a transept placed in front of the Bema
(sanctuary), with lower wings. The Bema was initially flanked by a pair of
parabemata (prothesis and diaconicon). Today only the northern parabema
survives intact. Relics of the southern parabema survive on the exterior of the
church. The Bema, the parabemata and the transept are covered with pointed
barrel-vaults. The Bema communicated with the parabemata through semicircular
arches. Pointed arches are formed between the nave and the transept wings. This
part of the church belongs to the initial building phase of the early Venetian
period. The western rectangular room of the parecclession, which is today
dedicated to the Ten Martyrs of Gortys (Hagioi Deka), belongs also to the initial
building phase of the church’s complex. This is suggested by the type of the
rib groin-vault which covers it. A similar groin-vault has survived in the
sanctuary of the church of St. Peter of the Dominicans, dating from the 13th c.
A.D. The pointed arched window of the western rectangular room of the
parecclession is another indication of an early dating. Its lower lintel was
walled up when the pareclession was altered, early in the 17th c. Its gothic
style can be compared to the windows of the basilica of St. Marc and the church
of St. Peter of the Dominicans, both dating from the 13th c. A.D.
During the second half of the 16th c. the church to the West of the transept
was rebuilt in the Renaissance style. Τhe decoration of the imposts of the
buttressing arches of the nave is a representative element. The restoration was
completed in 1576, according to the inscription over the main entrance. In the
beginning of the 17th c. the parecclession (dedicated today to Hagioi Deka) was
altered. East of the initial building was added another rectangular room, which
was covered with an octagonal ribbed dome, according to the Renaissance style.
The dome leans at the corners upon squinches and on the sides upon blind
arches. The ribs end down in a rich sculptural decoration with floral motifs.
The dome is crowned by a cupola (lantern). The western face of the building
received a new façade with an architrave. The renovation works were completed
in 1620, according to the inscription over the western entrance.
When Candia felt to the Ottomans, the church of St. Catherine was turned into a
mosque, named as Zülfikar Ali Pasha Çamisi or Ayia Katerina Çamisi. In front of
the southern façade of the pareclession of Hagioi Deka a double-store minaret
was added. In 1919, when Crete was liberated, the minaret was destroyed, except
for its rectangular base. Part of the minaret staircase made of limestone steps
is still visible from the inside of the church. In 1943 the church was
renovated and begun to function as an Orthodox church but in 1967 it was turned
into a museum of holy icons and liturgical objects of the Cretan Archdiocese.
Recently the Museum was renovated by the 13th Ephorate of Byzantine
Antiquities of Heraklion (www.iakm.gr). The project was funded by the by
the NSRF 2007-2013 (Regional Operation Program of “Crete and the Aegean
Islands”).
![]() | 1. Heraklion, Rabdh el Khandaq, Chandax, Candia, Megalo Kastro The adventure of a city | |
|---|---|---|
![]() | 1.1 Candia under the Venetian occupation | |
![]() | 1.2 The public buildings | |
![]() | 1.2.1 Ruga Magistra (Maistra) | |
![]() | 1.2.2 The Ducal Palace | |
![]() | 1.2.3 The Venetian Loggia | |
![]() | 1.2.4 The Warehouse for the Cereals (Fondaco) | |
![]() | 1.2.5 The Gate “Voltone” | |
![]() | 1.3 The orthodox churches | |
![]() | 1.3.1 St. Catherine of Sinai | |
![]() | 1.3.2 Saint Anastasia | |
![]() | 1.3.3 The Church of St. Mathew, dependency of Sinai | |
|
| 1.3.4 St. Onouphrios | |
![]() | 1.3.5 Virgin of the Angels (Santa Maria degli Angelis in Beccharia) | |
|
| 1.3.6 Church of the Virgin Pantanassa (southern aisle of the old Metropolis / old church of St. Menas) | |
![]() | 1.4 The Latin Churches | |
![]() | 1.4.1 The basilica of St. Marc (ducal church) | |
![]() | 1.4.2 The church of Saint John the Baptist | |
![]() | 1.4.3 Saint Paul of the Servites (Servants of Mary) | |
![]() | 1.4.4 The monastery of St. Francis of the Franciscans | |
![]() | 1.4.5 Santa Maria di Piazza (Madonina) | |
![]() | 1.4.6 The Monastery of St. Peter of the Dominicans | |
|
| 1.4.7 The Church of St. Titus (Latin Archdiocese) | |
![]() | 1.4.8 The church of San Salvatore | |
![]() | 1.5 The fountains and hydraulic works | |
![]() | 1.5.1 The Fountain of the Ruga Panigra (Strata Larga) | |
![]() | 1.5.2 The Bembo fountain | |
![]() | 1.5.3 The Morozini Fountain | |
![]() | 1.5.4 The Priuli fountain | |
![]() | 1.5.5 The Sagredo fountain |